Central Los Angeles Area High School #9 for the Visual and Performing Arts
Central Los Angeles Area High School #9 for the Visual and Performing Arts
Project Informations
Designer: HMC Architects
Location: Los Angeles, United States | View Map
Year: 2008
Category: Universities
Description:
Architectural Concept
Program and Site
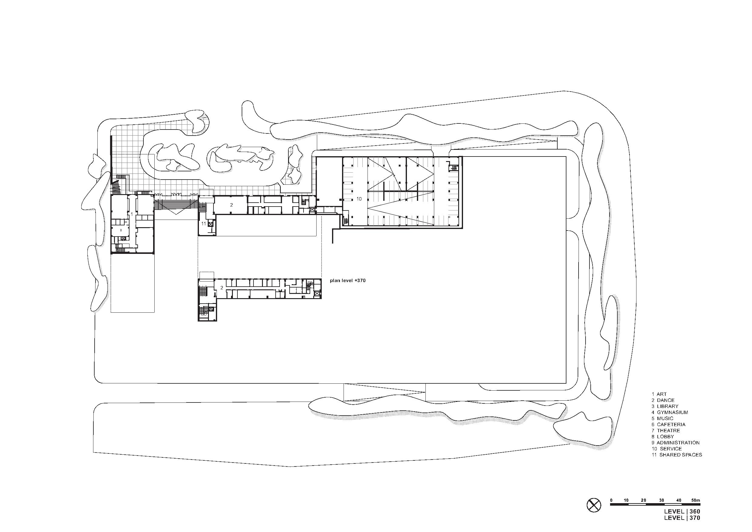
The Central Los Angeles Area High School #9 for the Visual and Performing Arts of the Los Angeles Unified School District (LAUSD) is part of phase II of LAUSD’s rigorous state bond funded plan to have 155 new schools built in its district by 2012. It is located on a 9.8 acre site on Grand Avenue in downtown Los Angeles. The school will be a comprehensive High School and in addition will offer courses in the Visual Arts, Performing Arts, Music and Dance. Due to its central location on Grand Avenue the High School will be a part of the cultural facilities along the Grand Avenue cultural corridor, joining the Disney Concert Hall, Music Center, Colburn School of Music, Museum of Contemporary Art and the Cathedral of our Lady of the Angels. To fulfil its mandate to be a public facility in keeping with the spirit of the other facilities on Grand Avenue the school campus will include a professional performing arts theater for just below 1,000 visitors, a venue, which so far has been missing in the spectrum of performance facilities downtown Los Angeles. The theater will be used for educational purposes, will be open to the public and for use by other institutions, and is equipped with a full stage, orchestra pit, back stage and fly-loft. The school is housing approximately 1.800 students organized in four academies, one for each discipline in the Arts. Accordingly, the campus is comprised of seven buildings, the theater building, four classroom buildings, the library and the cafeteria.
The unique central location of the site downtown, separated from the Grand Avenue corridor by the 101 freeway and thus visually exposed along the edge of one of the most widely used thoroughfares in downtown Los Angeles, was a determining factor in the decision to use this site to create LAUSD’s flagship high school for the Visual and Performing Arts and together with the program served as the point of departure for the architectural concept for the school.
Architectural Signs - Chess Concept
COOP HIMMELB(L)AU’s design concept is to use architectural signs as symbols to communicate the commitment of the Los Angeles community to Art. Like chess figures three sculptural buildings, which relate to the context of downtown Los Angeles and the program, re-define spatially and energetically the otherwise orthogonal arrangement of the master plan. A Tower figure with spiralling ramp in the shape of the number 9 located on top of the theater’s fly-loft serves as a widely visible sign for the Arts in the city and a point of identification for the students. Inside the tower, an event, conference and exhibition space with a view across the city is planned to be located. The theater complex is placed at the corner of Grand Avenue and the 101 Freeway. The tower connects the school visually and formally with downtown Los Angeles, and together with the Cathedral’s tower the twin towers will become a new landmark for the city. In addition to the tower a representational Lobby on Grand Avenue serves as the public entrance and integrates the school with the Grand Avenue corridor. Like a bridgehead the Lobby connects the site with the cultural facilities on the other side of the freeway. It is envisioned that the theater with all its amenities can be made available for public and commercial events to create additional revenue for the school.
As the symbol for learning and education the Library, or the Space of Knowledge, is formally expressed through a slanted, truncated cone and placed in the center of the school courtyard. Inside, the cone provides a large open space illuminated from above by a circular skylight thus offering an open, dynamic, but introverted and concentrated space for contemplation and focused learning. Through its diagonal position in relationship to the other buildings and its slanted form, the dynamic, circular building directs views and flows of people through the school courtyards, changes the perception of the courtyard space and provides a point of orientation for the students within the campus.
The four classroom buildings form the orthogonal perimeter of the school’s interior courtyards. The functional box beam buildings house one academy each as well as other shared educational and administrative spaces. Each building is organized with a central corridor which doubles as an exhibition gallery, generous open public stairways with lookout points to the exterior and expressive entrances, which serve as transition spaces between the exterior and interior. Each academy building houses its general classrooms, art studios, workrooms and satellite administration spaces.
In addition to the public entrance on Grand Avenue the seven buildings frame a second representational entrance, the main school entrance, located at the intersection of Grand Avenue and Cesar Chavez Street and facing the community. The main school entrance is formally expressed through an 80’ wide grand open stair, which leads directly into the main school courtyard with the conical library in its center and theater and tower in the background. The main entrance symbolically sets the stage for the students to experience this school as a decisive stage in their life and education.
Façade Concept
Along Grand Avenue and at strategic viewpoints around the site large round windows are placed to create a distinct and lively exterior and to allow passers by a glimpse of the activities within the school. Likewise, students inside the buildings will have visual contact with the city with constantly changing perspectives and frames. From the outside the round windows are a means to attract attention and enhance communication between the school and the city. From the inside the circular windows are an element for creating a lively atmosphere through distinct light conditions within the classrooms. The concept of the circular windows is most completely expressed at the Visual Art Building along Grand Avenue, which is also the most exposed at the front of the campus. For budget reasons the amount of circular windows was kept to a minimum in the other three classroom buildings, but like a stamp they are used in selective places across the campus to connect the buildings with each other and the surroundings.
Public School – Public Space
To provide opportunities for public spaces within a high school through the architecture and supported by the performing arts program is one of the main contributions of this project to education and the community, and unique in contemporary public school buildings in Los Angeles.
As part of the Master Plan concept, both inside the buildings as well as in the exterior of the school campus, spaces are organized hierarchically to form public, semi-public and private spaces.
While presenting a secured campus in the center of the city with buildings pushed to the perimeter of the site to form protected spaces within, and clearly articulated inviting entrances connected to open public plazas in front of them the school communicates openness and in its interior offers spaces, which can be made open to the public without compromising the security of the rest of the campus. Such public use, especially of the theater, can be achieved parallel to the school business or combined with it without one disturbing the other. Semi-public spaces include the Library, Cafeteria and main school courtyard as well as the network of corridors in the classroom buildings, connected to the Lobby, in which exhibitions can be shown. The school courtyard is articulated in scale and design like an urban plaza.
Performing Arts Theater
The Performing Arts Complex consists of the entrance lobby, main auditorium with orchestra pit, stage with fly loft, back stage, flexible theater, scene construction area and an outdoor amphitheater with stage area. The highly efficient concept of organizing the performance spaces back-to-back with the stage and backstage in the middle (serving both) was prioritized over the connection of the flexible theater to the lobby. The flexible theater, a “Black Box” theater of square proportion with a wooden dance floor and no fixed seating, is accessed through the school courtyard. Through a tension grid covering the ceiling it allows for flexibility in the use as an intimate experimental performance space and also serves as green room and back stage for the amphitheater.
The main theater with fixed seating for 957 visitors in a stadium seating arrangement with a height difference of 27’ from the highest to the lowest point is a performing arts theater with variable uses, which range from drama (spoken word) and electronically amplified activities to orchestral performances. In response to the intended uses a concept of ‘variable acoustics’ is employed utilizing heavy drapes in the space, which can be drawn when it is preferable to shorten the reverberation time such as for spoken word.
In addition, overhead ceiling and wall reflectors, the Clouds - convexly curved elements covered in hard, smooth plaster - reflect the sound from the performers on stage into the auditorium. Hung in space in an array of curves along the ceiling and walls the clouds serve both as acoustical and space defining elements, behind which the exterior walls and all other exposed technical built-ins, such as lighting catwalks, curtains and ducts recede into the background, which is painted in dark midnight blue. Each cloud has a plastered, curved front and an acoustically transparent back area of expanded metal panels. This acoustically transparent area was invented to give the clouds enough surface area to visually enclose the space while being non-existent from an acoustical perspective. The transparent areas are also used to further integrate technical installations such as mechanical registers, sprinklers and lights.
Next to the background color of dark midnight blue (which was chosen over black to create a more precious atmosphere), the clouds of smooth natural colored plaster and expanded metal panels of clear coated raw steel, the space is dominated by seats with precious ebony colored wooden backs upholstered in a bright theatrical red on an exposed concrete floor.
Color- and Material Concept
The materials and colors chosen for the project are an integral part of the architectural conception of the buildings.
The three sculptural forms - the Tower, Lobby and Library - are clad in bead blasted stainless steel, which through its softly reflective surface enhances the sculptural quality of the buildings and - as buildings of symbolic value - sets them apart from the rest of the campus.
For acoustical reasons exposed concrete was chosen as the structural end exterior material of the theater building. Its heaviness and the absence of openings (other than the glazed Lobby at its entrance) segregate it from the campus and create a powerful abstract form in whose hidden interior the space for special events can be found.
The Visual Arts Building situated visibly along Grand Avenue is clad elegantly in dark grey powder coated aluminum panels and accentuated through a façade of irregular round windows. The Dance, Music and Administration Buildings are situated towards the back of the campus and clad in smooth grey plaster.
In the interiors the base palette of neutral tones and natural material colors for all built-in surfaces is continued in order to create a consistent environment across the project from the outside to the inside. This unadorned and clear environment gives the students the opportunity to adopt the spaces and leaves them room to unfold - a condition for an environment for learning and creativity.
Exceptions are made for the special public space of the theater and semi-public spaces such as the library, cafeteria and administration spaces where unique precious materials and also colors can be found in the architecture to create appreciation and underline the special character and use of each of these spaces. Overall this strategy creates a rhythm of differentiated and contrasting zones within the overall consistent environment and enhances the different levels of private-, semi-public and public-ness in the school.
One accent color each is selected for the academies to create a distinct contrast, which will help create unity in the group, but also individuality and differentiation between the groups, which helps to create identity. Strong and fresh colors are used – red, purple, yellow and green - to inspire a welcoming and positive atmosphere. The accent colors will be found in the typical chrome-legged classroom chairs, which are of the same type and model in all academies, but of different color in each.
Structural Description
The structural design underlies the approval of DSA, the Division of the State Architect, and in addition the stringent requirements for seismic zone 4.
Influenced by the site topography with a height difference of 40’ from the lowest to the highest point and the Master Plan design, which terraces the site into three main levels - 360’, 385’ and 400’, concrete was chosen next to steel as the main structural building material for several of the buildings, which are partially semi- and partially full underground structures with retaining walls up to 40’ tall.
The majority of the above-ground structures are steel structures with the exception of the theater building, which for structural and acoustical reasons is a steel and concrete composite structure, utilizing concrete sheer walls combined with primary and secondary steel framing systems.
In order to describe the geometry of the sculptural buildings and to detail and economize them in terms of their structure and building systems from their outer skins to secondary framing, primary framing and inner wall surfaces, a 3D computer model in Rhino format was created by COOP HIMMELB(L)AU, which was made available to the project engineers during planning and to contractors before execution, and maintained and updated by COOP HIMMELB(L)AU throughout the planning and construction phases. It served as basis for other computer-based programs to be utilized in the planning, from structural design through lighting simulations, among others, guaranteed the most efficient and effective system designs, reduced margins in extracting quantities of building materials, secured efficient space planning for HVAC ductwork and precise surface tiling and detailing in all trades during execution to secure the high quality design through construction.
Environmental, Energy and Building Services Concepts
With the United States contributing to energy awareness through the LEED point system, HS#9 has achieved above average points in the comparable CHPS system utilized by schools.
Unlike most traditional school buildings in the city, which often operate with inefficient stand-alone roof top HVAC units, the campus utilizes a central plant with chillers, boilers (hot water), cooling tower and pumps. The central plant feeds roof top air handling units on each of the building roofs through closed circuit, high pressure, insulated underground piping.
Inside the buildings several strategies are employed to enhance energy efficiency:
- Integrated space planning for all building systems to create a synergy of function and form.
- Most effective duct distribution layout to avoid excess unused plenum space.
- Reduce volume of conditioned space to the area where people are through intelligent placement of supply and return air registers, instead of conditioning unused space.
- Operable windows in all spaces except specialty spaces to maximize natural light and allow for fresh air to contribute to space ventilation. In addition, separate HVAC controls for each classroom.
Classroom Buildings
In the classroom buildings typically two air handling units are placed at the extreme ends of the longitudinal buildings, and ducts descend through shafts to the upper and the lower building floors, respectively, where the central duct spine runs along the central corridor. From there, supply and return air branches feed the classrooms, always avoiding crossings as much as possible, as this is where building volume is unnecessarily inflated to create height, which is necessary in one spot, but unused for the remainder of the building.
Inside the classrooms, supply air is brought into the spaces in four places distributed across the floor plan and returned through hidden registers in cove soffits above the windows.
Operable windows are offered in all classroom spaces to maximize natural light and allow for fresh air to contribute to space ventilation. In addition, separate HVAC controls for each classroom are provided.
Library Building
In order to avoid jeopardizing the effect of the glazed round skylight and to shorten the duct length, the air handling unit for the Library was placed on top of the adjacent Dance Building. Without a conventional ceiling to work with in the Library cone and to avoid conditioning of unpopulated overhead space a sub-floor plenum space was created, which feeds supply air into the space through floor registers. Likewise, the return air registers are placed just above people’s heads behind the revolving inner skin. In this way, only about 1/2 of the building volume is conditioned, and only excess hot air extracted below the skylight at 60’ to avoid damaging the skylight.
Theater Building
In the theater complex a hidden roof top mechanical well was created above the back stage which hides the main air handling units from view while keeping them open to fresh air. From there all interior spaces inside the main concrete building are fed with high supply and low return air. Ducts in the Flexible Theater, back stage, stage and main auditorium are exposed and in case of the auditorium integrated into the space defining acoustical ceiling and wall clouds.
Lobby
In the Lobby a separate air handling unit is placed below the stadium seating. Similar to the Library the supply air is brought into the tall space through concrete underground ducts, and the return air is extracted just above people’s heads. Again, only the populated air volume is conditioned, while hot air will rise to underneath the skylight where it is mechanically extracted.





































